westimmobilien e.K.
Lornsenstraße 86
22869 Schenefeld

+49  40 840 55 779
info@westimmobilien.de

westimmobilien ist seit 2011 Ihr zuverlässiger Partner für den Kauf oder Verkauf, die Vermietung oder die Verwaltung Ihrer privaten oder gewerblichen Immobilie im Westen Hamburgs.

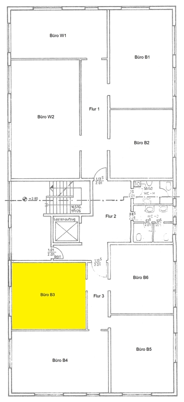
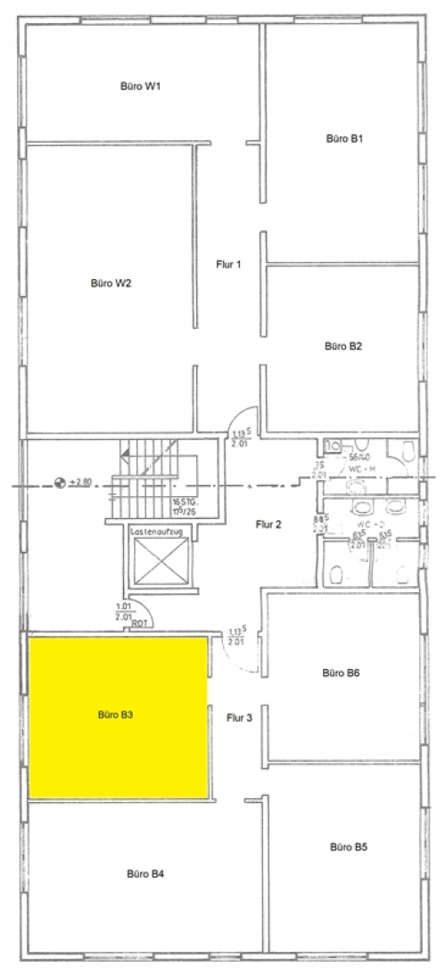
Bürofläche in Sackgassenlage von Hamburg-Eidelstedt

Ort/Straße: HAMBURG-EIDELSTEDT, Antonie-Möbis-Weg  
Objekttyp: Bürofläche  
Nutzfläche: ca. 29,5m²  
Lage: 1. Obergeschoss  
Nettomiete: 330,00 €  
Kaution:
€ 990,00 = 3 Nettomieten  
Courtage: € 392,70 = 1 Nettomiete inkl. MwSt.  
Bezugstermin: nach Vereinbarung  
Mindestmietzeit: 2 Jahre mit jährlicher Verlängerung  
Mietvertrag: Indexmietvertrag  
     
Objekt ID 60096  

 

Die Bürofläche befindet sich im Nord-Westen Hamburgs, in dem beliebten Stadtteil Hamburg-Eidelstedt. Das Niendorfer Gehege, welches fußläufig zu erreichen ist, ist ideal um einmal tief durchzuatmen und sich vom Alltagsstress zu erholen. Nicht weit von der Immobilie liegt der Eidelstedter Platz, an welchem sich der Busbahnhof befindet. Von dort aus fahren diverse Buslinien in Richtung der Hamburger Innenstadt sowie in die umliegenden Gemeinden. Außerdem befindet sich hier das im letzten Jahr modernisierte Eidelstedt Center, in welchem viele kleine Fachgeschäfte und Restaurants vorhanden sind. Die medizinische Versorgung, ist durch diverse Ärzte und Apotheken als ideal zu bezeichnen. Die AKN-Station „Eidelstedt“ und die S‑Bahnstation „Elbgaustraße“ mit den S-Bahnlinien S3 und S5 sind in wenigen Minuten zu erreichen. Des Weiteren bietet der Stadtteil diverse Kitas, drei Grundschulen und Gymnasien sowie zwei Stadtteilschulen. Außerdem gibt es jeweils eine Anschlussstelle an die Autobahn A7 und A23. Die Kombination aus einer sehr guten Infrastruktur, einem umfangreichen Schulsystem sowie diversen großen und kleinen Fachgeschäften sorgen für einen überaus positiven Gesamteindruck von Eidelstedt.

Die Bürofläche (Büro B5) befindet sich im 1. Obergeschoss eines sehr gepflegten Bürogebäudes. Das Büro bietet eine Nutzfläche von ca. 29,5 m² bestehend aus einem großzügigen Büroraum. Der vorliegende Energieausweis weist einen Energieverbrauchswert von 86 kWh/(m²a) aus.

  • Moderner Vinylfußboden
  • Abstellschrank mit Pantryküche
  • Klimagerät
  • Lastenaufzug
  • Anteilige Mietfläche: Damen- und Herren WC / Flure

Indexmietvertrag

Nettomiete:     330,00    
Betriebs- und Heizkostenvorausz.:     120,00   *
Zwischensumme:     450,00    
19% Mehrwertsteuer:     85,50    
Gesamtmiete:     535,50    

*In den Betriebskosten sind folgende Kostenpositionen enthalten: Grundsteuer, Heizkosten, Wasser-/Abwasser, Gemeinschaftsstrom, Straßenreinigung, Winterdienst, Gartenpflege, Wartung der Heizung, Wartung des Lastenaufzugs, Gebäudeversicherung, Müllentsorgung



Für Rückfragen stehen wir Ihnen gerne unter der Rufnummer: 040 – 84055779 zur Verfügung.

westimmobilien ist seit 2011 Ihr zuverlässiger Partner für den Kauf oder Verkauf, die Vermietung oder die Verwaltung Ihrer privaten oder gewerblichen Immobilie im Westen Hamburgs.

© 2024 Westimmobilien e.K.  |  Lornsenstraße 86  |   22869 Schenefeld  |  eMail: info@westimmobilien.de   |   Tel.:  040 - 840 55 779