westimmobilien e.K.
Lornsenstraße 86
22869 Schenefeld

+49  40 840 55 779
info@westimmobilien.de

westimmobilien ist seit 2011 Ihr zuverlässiger Partner für den Kauf oder Verkauf, die Vermietung oder die Verwaltung Ihrer privaten oder gewerblichen Immobilie im Westen Hamburgs.

Saniert und modernisiert! Ihr neues Zuhause in Schenefeld

Ort/Straße: SCHENEFELD-SIEDLUNG, Am Wasserberg  
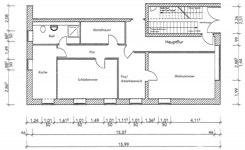
Objekttyp: Erdgeschosswohnung  
Zimmer: 2  
Wohnfläche: ca. 75m2
 
Lage: Erdgeschoss, links  
Baujahr: 1992  
Energiewert: 163,6 kWh/(m²a)  
Nettomiete: 1.035,00 €  
Kaution: € 3.105,00 = 3 Nettomieten  
Bezugstermin: nach Vereinbarung  
Mindestmietzeit: 24 Monate  
Objekt ID 50681  

 

Die Wohnung befindet sich in ruhiger Lage von Schenefeld. Das Zentrum Schenefeld´s bildet das über die Stadtgrenzen hinaus bekannte Stadtzentrum Schenefeld. Kleine Fachgeschäfte und Lebensmittelfilialen für den täglichen Bedarf befinden sich in der näheren Umgebung (z.B. Bäcker, ALDI). Für die Naherholung steht der Forst Klövensteen in unmittelbarer Nähe zur Verfügung. Die medizinische Versorgung ist durch verschiedene Ärzte in fußläufiger Erreichbarkeit gesichert. Schenefeld verfügt über ein breites Sportangebot in unterschiedlichen Vereinen sowie diverse Reitställe. Auf Grund der sehr guten Verkehrsanbindung genießt Schenefeld eine hohe Attraktivität insbesondere bei jungen Familien aus der angrenzenden Metropole Hamburg, die ein neues Heim suchen. Außer über die Autobahn A 23 ist Schenefeld auch durch ein engmaschiges Straßennetz mit der Weltstadt Hamburg und den Nachbargemeinden verbunden und hat eine Anbindung an den ÖPNV durch mehrere Buslinien.

Die großzügige 2 Zimmer Wohnung mit ca. 75m² Wohnfläche befindet sich im Erdgeschoss eines 1992 erbauten Mehrfamilienhauses. Das Mehrfamilienhaus befindet sich in einem gepflegten Zustand. Große Fenster lassen jeden Raum im Tageslicht erstrahlen. Die Beheizung erfolgt über eine neuwertige Gas-Brennwerttherme (Bj´22). Der vorliegende Energieausweis weist einen Endenergieverbrauch von 163,6 kWh/(m²a) aus.

  • Erstbezug nach Sanierung
  • Neue, helle Einbauküche inkl. Herd, Cerankochfeld, Geschirrspüler, Kühlschrank, Unter und Oberschränke
  • Neues, modernes Tageslichtbad mit Dusche
  • Helle Wohnräume mit großen Fenstern
  • Waschkeller mit Stellplatz für die eigene Waschmaschine
  • Abstellfläche in Gartenhütte Bio Hort
  • Großzügiger Gemeinschaftsgarten
  • PKW-Stellplatz kann für monatlich € 40,00 angemietet werden
Nettomiete:     1.035,00    
Betriebskostenvorauszahlung:     240,00   *
Gesamtmiete:     1.275,00    

*inkl. Wasservorauszahlung



Für Rückfragen stehen wir Ihnen gerne unter der Rufnummer: 040 – 84055779 zur Verfügung.

westimmobilien ist seit 2011 Ihr zuverlässiger Partner für den Kauf oder Verkauf, die Vermietung oder die Verwaltung Ihrer privaten oder gewerblichen Immobilie im Westen Hamburgs.

© 2024 Westimmobilien e.K.  |  Lornsenstraße 86  |   22869 Schenefeld  |  eMail: info@westimmobilien.de   |   Tel.:  040 - 840 55 779