westimmobilien e.K.
Lornsenstraße 86
22869 Schenefeld

+49  40 840 55 779
info@westimmobilien.de

westimmobilien ist seit 2011 Ihr zuverlässiger Partner für den Kauf oder Verkauf, die Vermietung oder die Verwaltung Ihrer privaten oder gewerblichen Immobilie im Westen Hamburgs.

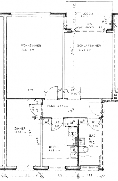
Lichtdurchflutete 3 Zimmer Wohnung mit herrlicher „Sonnen“ Loggia

Ort/Straße: SCHENEFELD-SIEDLUNG, Bogenstraße  
Objekttyp: Etagenwohnung  
Zimmer: 3  
Wohnfläche: ca. 68m2
 
Lage: 1. Obergeschoss, links  
Baujahr: 1966  
Energiewert: 152 kWh/(m²a)  
Nettomiete: 800,00 €  
Kaution: € 2.400,00 = 3 Nettomieten  
Bezugstermin: ab 01. Mai 2026  
Mindestmietzeit: 24 Monate  
Objekt ID 50524  

 

Die Wohnung befindet sich in ruhiger Lage von Schenefeld. Das Zentrum Schenefeld´s bildet das über die Stadtgrenzen hinaus bekannte Stadtzentrum Schenefeld. Kleine Fachgeschäfte und Lebensmittelfilialen für den täglichen Bedarf befinden sich in der näheren Umgebung (z.B. Bäcker, ALDI). Für die Naherholung steht der Forst Klövensteen in unmittelbarer Nähe zur Verfügung. Die medizinische Versorgung ist durch verschiedene Ärzte in fußläufiger Erreichbarkeit gesichert. Schenefeld verfügt über ein breites Sportangebot in unterschiedlichen Vereinen sowie diverse Reitställe. Auf Grund der sehr guten Verkehrsanbindung genießt Schenefeld eine hohe Attraktivität insbesondere bei jungen Familien aus der angrenzenden Metropole Hamburg, die ein neues Heim suchen. Außer über die Autobahn A 23 ist Schenefeld auch durch ein engmaschiges Straßennetz mit der Weltstadt Hamburg und den Nachbargemeinden verbunden und hat eine Anbindung an den ÖPNV durch mehrere Buslinien.

Die 3 Zimmer Wohnung mit einer Wohnfläche von ca. 68m² befindet sich im 1. Obergeschoss, links eines 1966 erstellten Mehrfamilienhauses. Die Wärmeversorgung erfolgt über eine Öl-Zentralheizung. Der vorliegende Energieausweis weist einen Energieverbrauchswert von 152 kWh/(m²a) aus.

  • Gepflegte Einbauküche inklusive Backofen, Cerankochfeld, Kühlschrank, Geschirrspülmaschine sowie Unter- und Oberschränke
  • Weißes Tageslichtbad mit großer Duschtasse, Echtglas-Duschabtrennung, Handtuchheizung und Stellplatz für die Waschmaschine
  • Design Bodenbelag im Wohnzimmer und Schlafzimmer
  • Laminatfußboden im aktuellen „Büro/Home-Office“ Zimmer
  • Sonnige Loggia mit Zugang aus dem Wohnzimmer und dem Schlafzimmer
  • Separater Kellerraum
  • Gemeinschaftseinrichtungen: Fahrradabstellbereich, Waschküche und Trockenraum
Nettomiete:     800,00    
Betriebs- und Heizkostenvorauszahlung:     260,00   *
Gesamtmiete:     1.060,00    

*Die Strom- und Wasserkosten rechnet der Mieter direkt mit den Versorgern ab.



Für Rückfragen stehen wir Ihnen gerne unter der Rufnummer: 040 – 84055779 zur Verfügung.

westimmobilien ist seit 2011 Ihr zuverlässiger Partner für den Kauf oder Verkauf, die Vermietung oder die Verwaltung Ihrer privaten oder gewerblichen Immobilie im Westen Hamburgs.

© 2024 Westimmobilien e.K.  |  Lornsenstraße 86  |   22869 Schenefeld  |  eMail: info@westimmobilien.de   |   Tel.:  040 - 840 55 779