westimmobilien e.K.
Lornsenstraße 86
22869 Schenefeld

+49  40 840 55 779
info@westimmobilien.de

westimmobilien ist seit 2011 Ihr zuverlässiger Partner für den Kauf oder Verkauf, die Vermietung oder die Verwaltung Ihrer privaten oder gewerblichen Immobilie im Westen Hamburgs.

Wohnen im „TRIANGOLO“

Ort/Straße: SCHENEFELD-DORF, In de Masch  
Objekttyp: Erdgeschosswohnung  
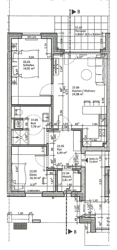
Zimmer: 3  
Wohnfläche: ca. 74,42m2
 
Lage: Erdgeschoss  
Baujahr: 2018-2020  
Energiewert: 61 kWh/(m²a)  
Nettomiete: 1.130,00 €  
Kaution: € 3.390,00 = 3 Nettomieten  
Bezugstermin: ab 01. Januar 2026  
Mindestmietzeit: 24 Monate  
Mietvertrag: Indexmiete  
Objekt ID 50438  

 

Die Wohnung befindet sich in ruhiger Lage im Dorf von Schenefeld. Das Zentrum Schenefeld´s bildet das über die Stadtgrenzen hinaus bekannte Stadtzentrum Schenefeld. Kleine Fachgeschäfte und Lebensmittelfilialen für den täglichen Bedarf befinden sich in der näheren Umgebung (z.B. Bäcker, ALDI). Für die Naherholung steht der Forst Klövensteen in unmittelbarer Nähe zur Verfügung. Die medizinische Versorgung ist durch verschiedene Ärzte in fußläufiger Erreichbarkeit gesichert. Schenefeld verfügt über ein breites Sportangebot in unterschiedlichen Vereinen sowie diverse Reitställe. Auf Grund der sehr guten Verkehrsanbindung genießt Schenefeld eine hohe Attraktivität insbesondere bei jungen Familien aus der angrenzenden Metropole Hamburg, die ein neues Heim suchen. Außer über die Autobahn A 23 ist Schenefeld auch durch ein engmaschiges Straßennetz mit der Weltstadt Hamburg und den Nachbargemeinden verbunden und hat eine Anbindung an den ÖPNV durch mehrere Buslinien.

Die moderne und barrierefreie 3 Zimmer Wohnung mit ca. 74,42m² Wohnfläche befindet sich im Erdgeschoss (Whg. Nr. 22) eines von 2018-2020 erbauten Mehrfamilienhauses. Dreifachisolierverglaste Fenster lassen die Wohnräume in Tageslicht erstrahlen. Mit dem Lift gelangen Sie bequem von der Tiefgarage bis vor die eigene Wohnungstür. Die Beheizung erfolgt über Fernwärme. Der vorliegende Energieausweis weist einen Energiebedarfskennwert von 61 kWh/(m²a) aus.

  • Offene EBK inkl. Backofen, Cerankochfeld, Kühl-/ Gefrierkombination, Geschirrspüler und Kühlschrank
  • Modernes Duschbad mit ebenerdiger Dusche, Waschmaschinenanschluss und Fußbodenerwärmung
  • Eleganter Design-Fußboden in den Wohn- und Schlafräumen sowie in der Küche, hochwertige Keramikfliesen in dem Flur, Abstellraum und dem Badezimmer
  • Lichtdurchflutetes Wohnzimmer mit bodentiefen Fenstern
  • Gemütlicher Terrassenbereich in Westausrichtung
  • Elektrische Außenrollläden an allen Fenstern
  • Separater Kellerraum
  • Tiefgaragenstellplatz (separater Mietvertrag)
  • Gemeinschaftseinrichtung: Fahrradabstellboxen
Nettomiete:     1.130,00    
Betriebskostenvorauszahlung:     250,00   *
TG-Stellplatz:     70,00    
Gesamtmiete:     1.450,00    

*Die verbrauchsabhängigen Kosten für Wasser-/ Abwasser-, Strom und Kabel-TV/Internet rechnet der Mieter direkt mit den Versorgern ab.



Für Rückfragen stehen wir Ihnen gerne unter der Rufnummer: 040 – 84055779 zur Verfügung.

westimmobilien ist seit 2011 Ihr zuverlässiger Partner für den Kauf oder Verkauf, die Vermietung oder die Verwaltung Ihrer privaten oder gewerblichen Immobilie im Westen Hamburgs.

© 2024 Westimmobilien e.K.  |  Lornsenstraße 86  |   22869 Schenefeld  |  eMail: info@westimmobilien.de   |   Tel.:  040 - 840 55 779