westimmobilien e.K.
Lornsenstraße 86
22869 Schenefeld

+49  40 840 55 779
info@westimmobilien.de

westimmobilien ist seit 2011 Ihr zuverlässiger Partner für den Kauf oder Verkauf, die Vermietung oder die Verwaltung Ihrer privaten oder gewerblichen Immobilie im Westen Hamburgs.

Wohnen im Grünen, investieren mit Weitblick… Vermietete Eigentumswohnung im Dorf von Halstenbek

Ort/Straße:   HALSTENBEK, Feldstraße  
Objekttyp:   Eigentumswohnung  
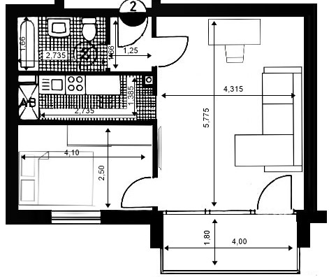
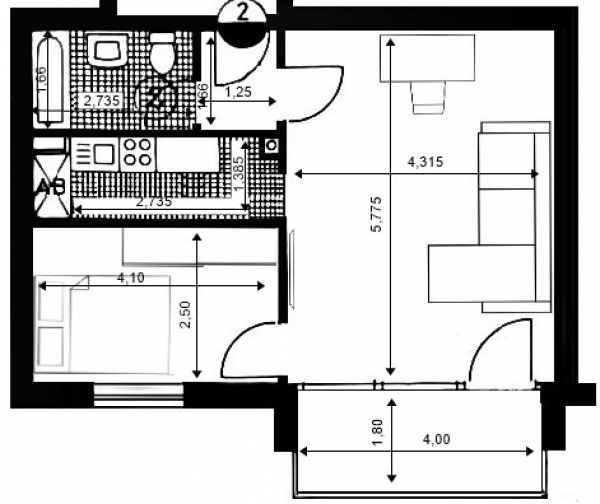
Zimmer:   2  
LAge:   Hochparterre  
Baujahr :   1984  
Wohnfläche:   ca. 49,61m²
 
Energiewert:   143 kWh/(m²a)  
Übergabe:   nach Vereinbarung  
Kaufpreis:   149.000,00 €  
Mieteinnahmen:   6.600,00 € p.a. (ist/soll)  
Wohngeld:   ca. 295,79 €  
Käufercourtage:   6 % inkl. MwSt. auf den Kaufpreis  
    Die Courtage für den Verläufer und Käufer  
    beträgt jeweils 3 % inkl. MwSt.  
       
Objekt ID   30089  

 

Die vermietete Eigentumswohnung befindet sich inmitten einer sehr beliebten Wohngegend von Halstenbek. Der attraktive Ortskern lädt zu einem Besuch in den Restaurants, Cafés, Fachgeschäften (z.B. HE-LA Weinhandel, Fleischerei Theegen), Lebensmittelfilialen (z.B. Bäcker, Edeka, ALDI) sowie dem Halstenbeker Wochenmarkt ein. Die Gemeinde Halstenbek liegt zentral zwischen Rellingen (Norden), Hamburg-Eidelstedt (Osten), Schenefeld (Süden) und Pinneberg (Westen). Mit einer Entfernung von 15km vom Hamburger Stadtzentrum, eignet sich Halstenbek besonders als Wohnstandort für Familien, die eine sehr gute Anbindung nach Hamburg benötigen, aber die Ruhe einer kleinen Gemeinde suchen. Die nähere Umgebung ist geprägt von hochwertigen Einfamilien-, Mehrfamilien- und Reihenhäusern. Außer über die Autobahn A23 ist Halstenbek auch durch ein engmaschiges Straßennetz mit den Nachbargemeinden verbunden und hat eine Anbindung an den öffentlichen Nahverkehr durch die S-Bahnstation „Halstenbek“ und mehrere Buslinien. Von der S-Bahnstation „Halstenbek“ (fußläufig ca. 5 Minuten) gelangen Sie mit der S3 in ca. 30 Minuten in die Hamburger Innenstadt. Verschiedene Ärzte (Allgemeinmediziner, Zahnärzte, Kinderärzte sowie weitere medizinische Fachärzte) und Apotheken für die medizinische Versorgung befinden sich im Halstenbeker Zentrum. Die über die Stadtgrenzen hinaus bekannte Wohnmeile Halstenbek bietet unterschiedliche Möbel- und Elektrofachgeschäfte. Ein breites und familiengerechtes Sportangebot steht in den Breitensportvereinen Halstenbeker TS, Blau-Weiß 96 Schenefeld e.V. und dem Fußball- und Tennisverein SV Halstenbek-Rellingen zur Verfügung. Für das Leben im Ort sowie Unterhaltung und Freizeitgestaltung sorgen weitere zahlreiche Vereine, Verbände und Öffentliche Einrichtungen. Ruhe und Ausgleich vom Alltag finden Naherholungssuchende in den vielen Wäldern, Wiesen und Feldern direkt vor der Tür. Der nahegelegene Forst Klövensteen lädt zu sportlichen Aktivitäten, langen Spaziergängen und Fahrradtouren ein. Die Spielplätze und das kostenlose Wildgehege sorgen auch bei den Kindern für Spaß und Abwechslung. Der Krupunder See bietet schöne Möglichkeiten sich auf einer Bank im Schatten der Bäume zu entspannen. Die Elbe ist mit dem Auto in wenigen Minuten zu erreichen und bietet sowohl an warmen, sonnigen Tagen, als auch im Winter viele Möglichkeiten für lange Spaziergänge oder um einfach die Seele baumeln zu lassen. Die Gemeinde Halstenbek verfügt über ein umfangreiches Bildungs- und Schulsystem. In sieben Kindergärten bzw. Kindertagesstätten werden die Kleinsten vom Krippenalter bis zum Beginn der Grundschule betreut. Mit der Grundschule Bickbargen, einer offenen Ganztagsschule, wird der Schulzweig für die heranwachsenden Kinder abgedeckt. Das Wolfgang-Borchert-Gymnasium und das Gymnasium Schenefeld decken die Oberstufe ab und ermöglichen den Kindern das Erlangen der Allgemeinen Hochschulreife. Des Weiteren bietet die Gemeinde eine Gemeinschaftsschule (Gemeinschaftsschule an der Bek) sowie eine japanische Schule an.

Die vermietet 2 Zimmer Wohnung verfügt über eine Wohnfläche von ca. 49,61m² und befindet sich im Hochparterre, Mitte, eines sehr gepflegten, dreigeschossigen Mehrfamilienhauses. Das Mehrfamilienhaus wurde 1984 erbaut uns befindet sich in einem optisch ansprechenden Gesamtzustand.

Die Eigentümergemeinschaft besteht aus 8 Wohneinheiten.

Die Beheizung der Wohnanlage erfolgt über eine Gas-Zentralheizung (Bj´06). Der vorliegende Energieausweis weist einen Energieverbrauchswert von 143,00 kWh/(m²a) aus.

  • Helle Küchenzeile inkl. Cerankochfeld, Backofen, Kühlschrank, Geschirrspülmaschine, Unter- und Oberschränke
  • Fußbodenheizung
  • Auslegware in der gesamten Wohnung
  • Loggia
  • Separater Kellerraum
  • PKW-Stellplatz
  • Gemeinschaftseinrichtungen: Waschküche mit Stellplatz für die eigene Waschmaschine, Trockenraum, Fahrradabstellbereich mit Außenzugang

 

Weitere Ausstattungshighlights präsentieren wir Ihnen gerne in einer persönlichen Besichtigung

Das Wohngeld (umlagefähige und nicht umlagefähige Kosten) beträgt z.Zt. ca. € 295,79 und beinhaltet u.a. Heizkosten (Gas), Wasserversorgung, Mülltonnenservice, Gebäudereinigung, Dachrinnenreinigung, Kosten der Gartenpflege, Schnee- und Eisbeseitigung, Allgemeinstrom, Gebäudeversicherung, Haus- und Grundbesitzer-Haftpflicht, Wartung Feuerlöscher, Wartung Rauchmelder WE und WTH, Verwaltervergütung

In dem Wohngeld ist die Zuführung in die Instandhaltungsrücklage bereits enthalten. Diese beläuft sich z.Zt. auf eine Summe von € 44,00 im Monat.

Die umlagefähigen Betriebskosten belaufen sich z.Zt. auf ca. € 170,12 im Monat.

Die Instandhaltungsrücklage weist einen Bestand per 31.12.2024 von € 16.458,37 aus.

Die Wohnung ist seit dem 01. Januar 2018 vermietet. Die monatliche Nettokaltmiete beträgt € 550,00. Eine Indexmiete ist vereinbart.



Für Rückfragen stehen wir Ihnen gerne unter der Rufnummer: 040 – 84055779 zur Verfügung.

westimmobilien ist seit 2011 Ihr zuverlässiger Partner für den Kauf oder Verkauf, die Vermietung oder die Verwaltung Ihrer privaten oder gewerblichen Immobilie im Westen Hamburgs.

© 2024 Westimmobilien e.K.  |  Lornsenstraße 86  |   22869 Schenefeld  |  eMail: info@westimmobilien.de   |   Tel.:  040 - 840 55 779