westimmobilien e.K.
Lornsenstraße 86
22869 Schenefeld

+49  40 840 55 779
info@westimmobilien.de

westimmobilien ist seit 2011 Ihr zuverlässiger Partner für den Kauf oder Verkauf, die Vermietung oder die Verwaltung Ihrer privaten oder gewerblichen Immobilie im Westen Hamburgs.

Wohnen auch im hohen Alter möglich… Charmanter Bungalow mit herrlichem Grundstück in Waldrandlage

Ort/Straße:   SCHENEFELD-DORF, Op de Gehren  
Objekttyp:   Bungalow  
Baujahr:   1971  
Zimmer:   4 zzgl. Essbereich  
Wohn-/Nutzfläche:   ca. 213,53m²
 
Energiewert:   460,7 kWh/(m²a)  
Grundstück:   806m²  
Übergabe:   nach Vereinbarung  
Kaufpreis:   495.000,00 €  
Courtage:   6 % inkl. MwSt. auf den Kaufpreis  
    Die Courtage für den Verkäufer und  
    Käufer beträgt jeweils 3 % inkl. MwSt.  
       
Objekt ID   20395  

 

Der Bungalow befindet sich in einer ruhigen Sackgassenlage am Rande des Forst Klövensteen. Schenefeld ist eine beliebte und familienfreundliche Stadt direkt an der westlichen Grenze Hamburgs im Kreis Pinneberg. Mit seiner hervorragenden Infrastruktur, und einem hohen Freizeitwert zählt Schenefeld zu den begehrtesten Wohnlagen im Hamburger Umland.

Perfekte Balance aus Natur und Urbanität:

Eingebettet in die grüne Landschaft Schleswig-Holsteins, bietet Schenefeld eine idyllische Umgebung mit zahlreichen Grünflächen, Parks und angrenzenden Waldgebieten wie dem Klövensteen. Hier finden Naturliebhaber und Familien ideale Bedingungen für Erholung und Freizeitaktivitäten: ausgedehnte Spaziergänge, Fahrradtouren oder entspannte Stunden im Grünen sind direkt vor der Haustür möglich. Gleichzeitig ist das Zentrum Hamburgs mit all seinen kulturellen, gastronomischen und wirtschaftlichen Angeboten in kurzer Zeit erreichbar, was Schenefeld zu einem attraktiven Wohnort für Pendler und Stadtliebhaber macht.

Hervorragende Infrastruktur und kurze Wege:

Schenefeld zeichnet sich durch eine ausgezeichnete Infrastruktur aus, die den Alltag komfortabel und effizient gestaltet. Im Ortskern und den umliegenden Bereichen finden sich alle Geschäfte des täglichen Bedarfs, darunter Supermärkte, Bäckereien, Apotheken und diverse Dienstleister. Die medizinische Versorgung ist durch Arztpraxen verschiedener Fachrichtungen gesichert. Für Familien bietet Schenefeld eine breite Palette an Betreuungs- und Bildungseinrichtungen, darunter Kindergärten, Grundschulen sowie weiterführende Schulen, die fußläufig oder mit dem Fahrrad gut erreichbar sind.

Vielfältige Freizeitmöglichkeiten:

Die Stadt Schenefeld ist bekannt für ihr aktives Gemeinschaftsleben und ein breites Spektrum an Freizeitaktivitäten. Neben den bereits erwähnten Naturerlebnissen profitieren die Bewohner von einem regen Vereinsleben, Sportanlagen und kulturellen Angeboten. Das Forum Schenefeld ist ein beliebter Treffpunkt für Veranstaltungen und Konzerte.

Optimale Verkehrsanbindung:

Die strategische Lage von Schenefeld garantiert eine hervorragende Anbindung an das Verkehrsnetz. Über die gut ausgebauten Straßen sind die Autobahnen A7 und A23 schnell erreichbar, was eine zügige Fahrt in die Hamburger Innenstadt, zum Flughafen Hamburg oder in andere Regionen Norddeutschlands ermöglicht. Auch der öffentliche Nahverkehr ist gut ausgebaut, mit regelmäßigen Busverbindungen, die Anschlüsse an die S-Bahn-Linien in den umliegenden Hamburger Stadtteilen gewährleisten. Dies ermöglicht eine bequeme und umweltfreundliche Fortbewegung ohne auf das Auto angewiesen zu sein.

Fazit:

Diese Immobilie bietet die perfekte Basis für Ihr neues Zuhause. Es verbindet die Vorteile einer ruhigen, grünen Wohnlage mit einer umfassenden Infrastruktur, kurzen Wegen zu Kindergärten, Schulen und Einkaufsmöglichkeiten sowie einer schnellen Anbindung an die Hamburger Innenstadt. Hier entsteht ein Zuhause, das urbanes Leben und naturnahe Erholung ideal miteinander vereint – optimal für Familien, Paare und alle, die ein Grundstück in bester Lage suchen.

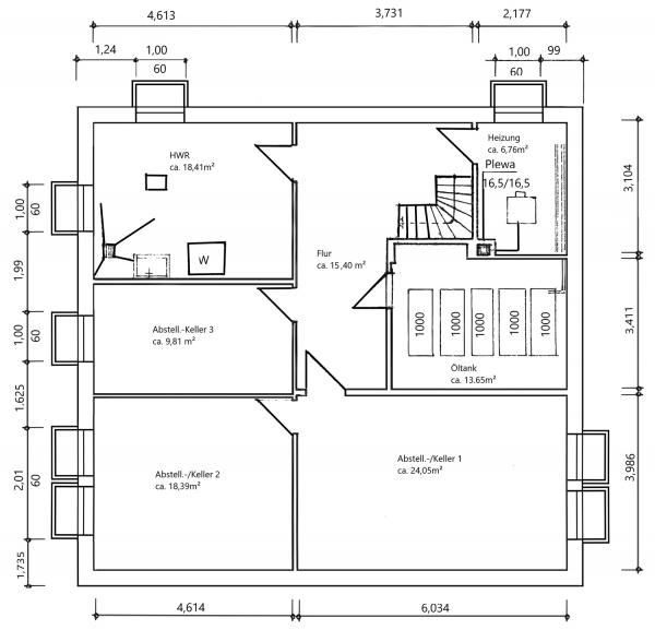
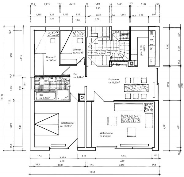
Dieser attraktive und familienfreundliche Bungalow überzeugt durch seine massive Bauweise aus dem Jahr 1971 und eine großzügige Gesamtwohn- und Nutzfläche von ca. 213,53m². Neben der komfortablen Wohnfläche im Erdgeschoss (Wohnfläche ca. 107,06m²) stehen im Untergeschoss weitere Flächen (Nutzfläche ca. 106,47m²) zur Verfügung.

Das Erdgeschoss überzeugt mit einem lichtdurchfluteten Wohnzimmer und einem angrenzenden, großzügigen Essbereich. Ergänzt wird diese Ebene durch ein Schlafzimmer mit direktem Zugang in den Garten, zwei vielseitig nutzbare Kinderzimmer, die Küche, ein Gäste-WC sowie ein Tageslichtbad mit Badewanne und Dusche. Das Untergeschoss mit einer lichten Höhe von ca. 2,02m wurde in massiver Bauweise als sogenannte „schwarze Wanne“ mit vertikaler Bitumenabdichtung sowie horizontaler Abdichtung mittels Bitumenpappe hergestellt und bietet damit einen konstruktiven Schutz gegen Bodenfeuchtigkeit. Besonders hervorzuheben sind die großzügig dimensionierten Kellerräume, die eine vielseitige und individuelle Nutzung des Untergeschosses – beispielsweise für Hobby, Freizeit oder Lagerzwecke – ermöglichen und den Wohnkomfort dieser Immobilie auf attraktive Weise erweitern.

Die Geschossaußenwände wurden in solider, massiver Bauweise als zweischaliges Mauerwerk mit einer ca. 17,5 cm starken tragenden Kalksandsteinwand sowie einem ca. 11,5 cm starken Verblendmauerwerk ausgeführt. Die Innenwände bestehen ebenfalls aus hochwertigem Kalksandsteinmauerwerk mit einer Stärke von ca. 11,5 cm und unterstreichen die wertbeständige Bauqualität der Immobilie. Die nachhaltige und qualitätsvolle Bauausführung wird durch eine ca. 15 cm starke Geschossdecke aus Stahlbeton sowie die Flachdachkonstruktion in Holzbalkenbauweise als Warmdach eindrucksvoll unterstrichen. Diese Bauweise gewährleistet eine hohe konstruktive Stabilität und steht für die insgesamt solide Bauqualität der Immobilie.

Die Beheizung der Immobilie erfolgt über eine Ölzentralheizung aus dem Hause Viessmann (Baujahr 1985, Fabrikat Vitola-Biferral BT18). Die zugehörige Tankanlage verfügt über ein Gesamtfassungsvermögen von ca. 5.000 Litern, verteilt auf fünf Öltanks, und gewährleistet damit eine zuverlässige Wärmeversorgung des Hauses. Der vorliegende Energieausweis weist einen Energiebedarfswert von 460,7 kWh/(m²a) aus.

Der Bungalow präsentiert sich in einem gepflegten, altersbedingten Gesamtzustand.

  • Familiengerechter Grundriss
  • Gepflegte Einbauküche inkl. Backofen, Kochfeld, Dunstabzugshaube, Kühlschrank, Unter- und Oberschränke
  • An den Küchenbereich angrenzender Essbereich
  • Tageslichtbad mit Badewanne und Dusche
  • Separates Gäste-WC mit Fenster
  • Diverse maßgefertigte Einbau- und Abstellschränke
  • Doppelverglaste, teilweise bodentiefe Holzfenster
  • Terrasse in Süd-Ausrichtung mit Blick in den schönen Garten
  • Einzelgarage

 

Weitere Ausstattungshighlights der Immobilie präsentieren wir Ihnen gerne in einer persönlichen Besichtigung

Das großzügige, sonnige und eingefriedete Grundstück mit 806m² bietet allen Familienmitgliedern Freiheit und Raum für Spaß und Erholung. Während Sie Ihren Kindern beim Spielen im Garten zusehen, lädt das Sonnendeck (Terrasse) zum Sitzen und Verweilen ein. Abgerundet wird der durchweg positive Gesamteindruck durch unterschiedliche, zum Teil blühende, Büsche, Pflanzen und Bäume.

Das Grundstück befindet sich im Geltungsbereich eines rechtskräftigen Bebauungsplanes von Schenefeld Nr. 37 „Blankeneser Chaussee“. Der Bebauungsplan weist folgende Kennziffern aus:

  • WR =          reines Wohngebiet (§ 3 BauNVO) 
  • I =          Zahl der Vollgeschosse innerhalb der Baugrenzen/Baulinie 
  • 0,3 =          Geschossflächenzahl 
  • o =          offene Bauweise 
  • 35°             =          Dachneigung bis zur angegebenen Gradzahl zulässig 
  • Baufenster =          23/20m Breite (ohne/mit Abstandsflächen) und ca. 15m Tiefe

 

Die Abrisskosten, Erschließungskosten und Vermessungs-/Einmessungskosten (Baukörper) für das Grundstück trägt der Käufer. Eine aussagekräftige und aktuelle Bauvoranfrage obliegt dem Kaufinteressenten. Für die Bebaubarkeit des Grundstücks können wir keine Haftung übernehmen.



Für Rückfragen stehen wir Ihnen gerne unter der Rufnummer: 040 – 84055779 zur Verfügung.

westimmobilien ist seit 2011 Ihr zuverlässiger Partner für den Kauf oder Verkauf, die Vermietung oder die Verwaltung Ihrer privaten oder gewerblichen Immobilie im Westen Hamburgs.

© 2024 Westimmobilien e.K.  |  Lornsenstraße 86  |   22869 Schenefeld  |  eMail: info@westimmobilien.de   |   Tel.:  040 - 840 55 779