westimmobilien e.K.
Lornsenstraße 86
22869 Schenefeld

+49  40 840 55 779
info@westimmobilien.de

westimmobilien ist seit 2011 Ihr zuverlässiger Partner für den Kauf oder Verkauf, die Vermietung oder die Verwaltung Ihrer privaten oder gewerblichen Immobilie im Westen Hamburgs.

Familienglück in Hamburg-Hummelsbüttel… Mittelreihenhaus zum Ankommen & Bleiben

Ort/Straße:   HAMBURG-HUMMELSBÜTTEL, Kulenwisch  
Objekttyp:   Mittelreihenhaus  
Baujahr:   1977  
Zimmer:   5 zzgl. Essbereich  
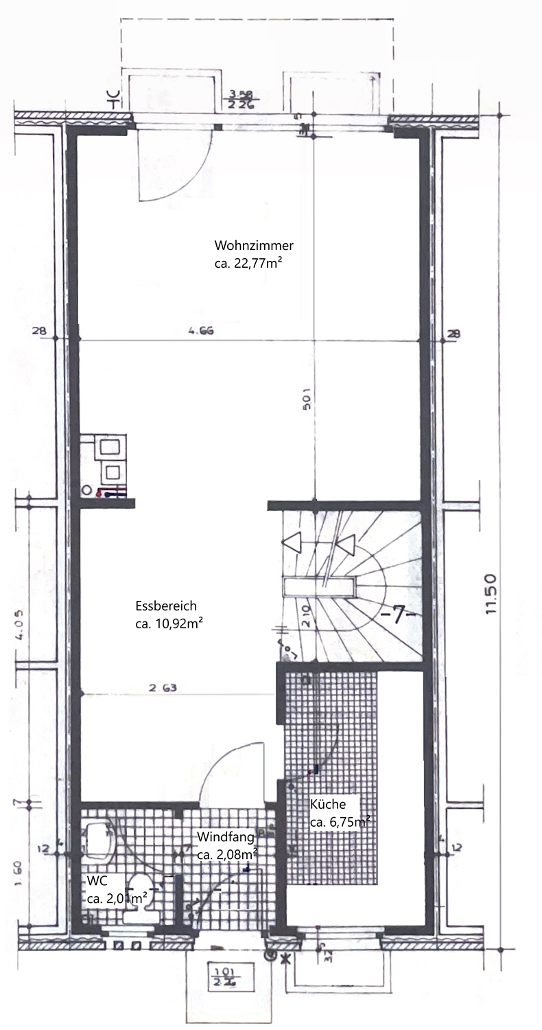
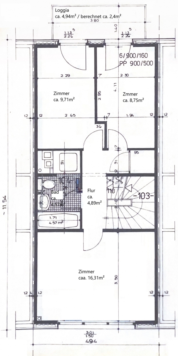
Wohn-/Nutzfläche:   ca. 124,72m²
 
Energiewert:   63,1 kWh/(m²a)  
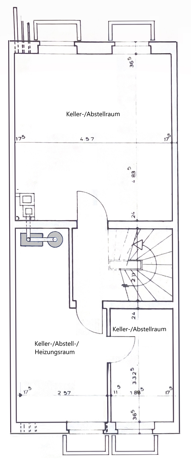
Grundstück:   171m²  
Übergabe:   nach Vereinbarung  
Kaufpreis:   695.000,00 €  
Courtage:   6 % inkl. MwSt. auf den Kaufpreis  
    Die Courtage für den Verkäufer und  
    Käufer beträgt jeweils 3 % inkl. MwSt.  
       
Objekt ID   20394  

 

Das Reihenhaus liegt in der ruhigen Straße Kuhlenwisch im grünen Hamburger Stadtteil Hummelsbüttel – einem Ort, an dem man ankommt, durchatmet und sich dauerhaft zuhause fühlt. Geprägt von gepflegten Reihen- und Einfamilienhäusern, alten Baumbeständen und einer gewachsenen Nachbarschaft bietet diese Wohnlage ein Umfeld, das Ruhe, Sicherheit und Lebensqualität vereint. Hier genießen Sie ein entspanntes Wohnen abseits des städtischen Trubels, ohne auf die Vorteile der Großstadt verzichten zu müssen.

Der Kuhlenwisch selbst zeichnet sich durch seine angenehme Zurückgezogenheit aus. Kinder können hier noch unbeschwert spielen, Nachbarn grüßen sich, und der Alltag verläuft in einem ruhigen, freundlichen Rhythmus. Gleichzeitig sind alle Einrichtungen des täglichen Lebens bequem erreichbar. Einkaufsmöglichkeiten, Bäckereien, Apotheken, Ärzte und weitere Dienstleister befinden sich in der näheren Umgebung.

Das beliebte Alstertal-Einkaufszentrum (AEZ) ergänzt das Angebot mit einer Vielzahl an Geschäften, Cafés und Restaurants und wird schnell zu einem festen Bestandteil des Alltags.

Der familienfreundliche Stadtteil Hummelsbüttel bietet eine breite Auswahl an Kindertagesstätten und Betreuungsangeboten in fußläufiger Nähe. Von kleineren, familiären Einrichtungen über bilinguale und inklusive Kitas bis hin zu ganztägigen Betreuungsplätzen – viele Eltern finden hier passende Betreuungsmodelle in direkter Umgebung. Die breite Angebotsvielfalt sorgt für kurze Wege im Alltag und stärkt die Attraktivität des Wohnstandorts für Familien mit kleinen Kindern.

Hamburg-Hummelsbüttel bietet eine sehr gute schulische Infrastruktur mit kurzen Wegen. Im Stadtteil befinden sich eine Grundschule sowie das Gymnasium Hummelsbüttel, die eine durchgängige schulische Laufbahn vom Grundschul- bis zum Abiturbereich ermöglichen. Beide Schulen sind gut erreichbar und zeichnen sich durch verlässliche Betreuungsangebote und ein engagiertes pädagogisches Umfeld aus. Ergänzend stehen in den benachbarten Stadtteilen Poppenbüttel, Langenhorn und Fuhlsbüttel weitere Stadtteilschulen und Gymnasien zur Verfügung, die durch den öffentlichen Nahverkehr schnell erreichbar sind. Das vielfältige Bildungsangebot unterstreicht die Familienfreundlichkeit und Attraktivität des Wohnstandorts Hummelsbüttel. Die Kombination aus wohnortnahen Schulen, kurzen Wegen und einem vielfältigen Angebot macht den Stadtteil besonders attraktiv für Familien mit schulpflichtigen Kindern und unterstreicht die hohe Wohn- und Lebensqualität der Lage.

Besonders prägend für die hohe Lebensqualität ist die Nähe zur Natur. Das Alstertal, die umliegenden Grünzüge sowie weitläufige Spazier- und Radwege laden zu erholsamen Stunden im Freien ein – sei es beim morgendlichen Spaziergang, einer Fahrradtour am Wochenende oder einfach zum Abschalten nach einem langen Tag. Diese grüne Umgebung verleiht dem Stadtteil seinen besonderen Charme und macht das Wohnen hier spürbar entschleunigt.

Trotz der ruhigen Lage ist die Anbindung hervorragend. Busverbindungen ermöglichen eine schnelle Erreichbarkeit der umliegenden Stadtteile und des Hamburger Verkehrsnetzes. Mit dem Auto sind sowohl die Innenstadt, der Flughafen Hamburg als auch die wichtigsten Verkehrsachsen zügig erreichbar. So verbindet sich hier das Gefühl von Rückzug und Geborgenheit mit urbaner Flexibilität.

Die gemütliche 5 Zimmer zzgl. Essbereich Mittelreihenhaus mit einer Wohn-/Nutzfläche von ca. 124,72m² wurde im Jahr 1977 (Baugenehmigung Nr. 1213/76) von der Hamburger Baufirma „Hausbau GmbH“ errichtet.

Die Wohn-/Nutzfläche verteilt sich auf ca. 45,39m² Wohnfläche im Erdgeschoss, ca. 46,70m² Wohnfläche im Obergeschoss und ca. 5,83m² Wohnfläche im Dachstudio. Des Weiteren verfügt die Immobilie über eine wohnlich ausgebaute Nutzfläche (1 Zimmer) von ca. 26,80m² im Dachstudio. In einigen Häuser in der Nachbarschaft wurde die Umwandlung der Nutzfläche im Dachstudio in Wohnfläche bereits vollzogen.

Die massive Beton Bauweise (Thermocrete-Beton) ist in dem damaligen Siedlungsbauprogrammen (Wohnpark Susebek) vorgesehen gewesen und in den Straßenzügen Kulenwisch, Hauwisch und Brillkamp zahlreich wieder zu erkennen. Die Außenwände im Erdgeschoss wurden laut Baubeschreibung mit ca. 12cm Thermocrete-Beton, ca. 4cm Wärmedämmung, ca. 5cm Luftschicht und ca. 11,5cm KSV (weiß geschlemmt) errichtet. Die Außenwände im Obergeschoss wurden von innen nach außen mit ca. 12cm Thermocrete-Beton, ca. 4cm Wärmedämmung und Asbest-Schieferplatten auf Holzkonstruktion aufgebaut. Die Innenwände wurden ebenso aus ca. 7cm / 12cm Thermocrete-Beton hergestellt. Die Gebäudetrennwände (zweischalige Gebäudetrennwände) wurden durch eine ca. 4cm Luftschicht getrennt. Das Untergeschoss wurde als sog. „schwarze“ Wanne mit Bitumen-Schutzanstrich gegen eindringende Feuchtigkeit erstellt.

 

Die Immobilie wurde fortlaufend saniert und modernisiert. So wurden u.a.:

2017:               Wohnzimmerfenster erneuert

2021:              Kamin erneuert, Gartenzaun erneuert

2022:               restlichen Fenster ausgetauscht, Elektrik erneuert, Fußbodenbeläge im Obergeschoss ausgetauscht, eine                                  moderne Einbauküche eingebaut

2023:              Erneuerung der Terrassenüberdachung

2024:              Fußbodenbeläge im Erdgeschoss ausgetauscht

2025:              Erneuerung des Badezimmers im Obergeschoss, Erneuerung des Bodenbelages auf dem Balkon

 

Die Beheizung des Hauses erfolgt über eine Gasheizung der Firma „Vaillant“ (Bj´89, Fabrikat: VKS 17/1 EU) mit separatem ca. 150 Liter Warmwasserspeicher. Der vorliegende Energieausweis weist einen Energieverbrauchswert von 63,1 kWh/(m²a) aus.

  • Familiengerechter Grundriss
  • Ansprechende und moderne Einbauküche im Landhausstil mit Backofen, Induktionskochfeld, Mikrowelle, Geschirrspülmaschine, Kühlschrank, Gefrierschrank, Unter- und Oberschränke
  • Stylisches Badezimmer im Obergeschoss mit Badewanne, separater Dusche und Fußbodenheizung
  • Gäste-WC mit Fenster im Erdgeschoss
  • Designfußboden im Erdgeschoss, Laminatfußboden im Obergeschoss
  • Elektrische Außenrollläden
  • Großzügiger Terrassenbereich mit moderner Terrassenüberdachung
  • Separater Balkon im Obergeschoss
  • Tiefgaragenstellplatz (Zufahrt von der Straße Hauwisch)
  • Holzgartenhaus

 

Weitere Ausstattungshighlights der Immobilie präsentieren wir Ihnen gerne in einer persönlichen Besichtigung

Das herrliche und sonnige Grundstück bietet allen Familienmitgliedern Freiheit und Raum für Spaß und Erholung. Während Sie Ihren Kindern beim Spielen im Garten zusehen, laden die sonnigen Terrassenbereiche zum Sitzen und Verweilen ein. Auch an regnerischen Tagen bietet die Terrassenüberdachung ein trockenes Plätzchen. Platz für Gartengeräte bietet das ansprechende Holzgartenhaus. Abgerundet wird das positive Gesamtbild durch den einladenden Vorgarten.

Zu dem Grundstück gehören zusätzlich 1/10 Miteigentumsanteil an der Gebäude- und Freifläche (Müllboxen) in einer Größe von 14m², 1/112 Miteigentumsanteil an der Gebäude- und Freifläche (Spielplatz) in einer Größe von 531m² und 1/29 Miteigentumsanteil an dem Garagengrundstück in einer Größe von 437m².



Für Rückfragen stehen wir Ihnen gerne unter der Rufnummer: 040 – 84055779 zur Verfügung.

westimmobilien ist seit 2011 Ihr zuverlässiger Partner für den Kauf oder Verkauf, die Vermietung oder die Verwaltung Ihrer privaten oder gewerblichen Immobilie im Westen Hamburgs.

© 2024 Westimmobilien e.K.  |  Lornsenstraße 86  |   22869 Schenefeld  |  eMail: info@westimmobilien.de   |   Tel.:  040 - 840 55 779