westimmobilien e.K.
Lornsenstraße 86
22869 Schenefeld

+49  40 840 55 779
info@westimmobilien.de

westimmobilien ist seit 2011 Ihr zuverlässiger Partner für den Kauf oder Verkauf, die Vermietung oder die Verwaltung Ihrer privaten oder gewerblichen Immobilie im Westen Hamburgs.

Zwei Immobilien, ein Kaufpreis...Doppelhaus in der "Rosen und Hochzeitsstadt" Uetersen

Ort/Straße:   UETERSEN, Heisterkampstraße  
Objekttyp:   Doppelhaus  
Baujahr:   1927/'47/'48  
Zimmer:   4 + 4  
Wohnfläche:   ca. 68,15m² + ca. 69,91m²
 
Energiewert:   402,90 kWh/(m²a)  
Grundstück:   jeweils 289m² (real geteilt)  
Übergabe:   nach Vereinbarung  
Kaufpreis:   245.000,00 €  
Courtage:   6 % inkl. MwSt. auf den Kaufpreis  
    Die Courtage für den Verkäufer und  
    Käufer beträgt jeweils 3 % inkl. MwSt.  
       
Objekt ID   20393  

 

Die Immobilie befindet sich in der wunderschönen Rosen- und Hochzeitsstadt Uetersen. Bekannt ist Uetersen für sein “Rosarium“, einen Rosenpark, der Kaffeefahrten von weit her anlockt.

Mit sieben Hektar Fläche ist es der größte Rosengarten Norddeutschlands und bildet den Mittelpunkt der deutschen Rosenzucht. In Uetersen werden mehr als 35.000 Rosen und 1020 verschiedene Rosensorten in allen farblichen Abstufungen und Duftnuancen vorgestellt.  Daneben besitzt Uetersen mehrere künstlich angelegte Parks.

Die Parkanlage des Museums „Langes Tannen“ und der angrenzende Wald mit dem sogenannten „Hexenwald“ ermöglicht ausgedehnte und erholsame Spaziergänge.

Auch die fünf Hektar große Klosteranlage des Klosters Uetersen, das sich im Privatbesitz befindet, ermöglicht romantische Spaziergänge zwischen historischen Gebäuden und altem Baumbestand. In der angrenzenden Altstadt gibt es noch weitere historische Alleen, Fußwege und Promenaden.

Unweit der Stadt befindet sich in einer idyllischen Wald- und Wiesenlandschaft, das Freibad Oberglinde, ein Naturbad, das kostenlos benutzt werden kann und in den Sommermonaten zu bestimmten Uhrzeiten durch die DLRG bewacht wird.

Für die Betreuung der Kinder ist durch sieben Kindergärten/Kindertagesstätten gesorgt. Danach können die Eltern sich zwischen zwei Grundschulen für ihre Kinder entscheiden. Als weiterführende Schulen bieten sich die zwei Gemeinschaftsschulen (eine mit gymnasialer Oberstufe) und ein Gymnasium, welche jeweils mit dem Fahrrad zu erreichen sind, an.

Für Sportbegeisterte bietet der Verein TSV Uetersen ein vielfältiges Programm aus Fitness und Ballsportarten, wie z.B. Basketball, Faustball, Handball, Tischtennis, Volleyball etc., an. Für Fußballgeisterte steht der Rasensportverein Uetersen zur Verfügung. 

Die Anbindung an die Autobahn A23 in Tornesch über den neuen Zubringer K 22, sowie die günstige Lage zu den Hamburger Verkehrsmedien bietet Einwohnern ideale Bedingungen und kurze Wege. Die KVIP (Kreisverkehrsgesellschaft in Pinneberg mbH) ist Partner im Hamburger Verkehrsverbund (HVV), dessen Verkehrsgebiet tariflich weit in die Umlandkreise der Hansestadt hineinragt und z.B. das gesamte Gebiet des Kreises Pinneberg abdeckt. Der Hamburger Flughafen Fuhlsbüttel sowie die Hamburger Innenstadt sind in ca. 30 PKW-Minuten zu erreichen.

Insgesamt sorgt die Kombination aus ländlicher Idylle und der guten Anbindung an Hamburg für den überaus positiven Gesamteindruck der Gemeinde.

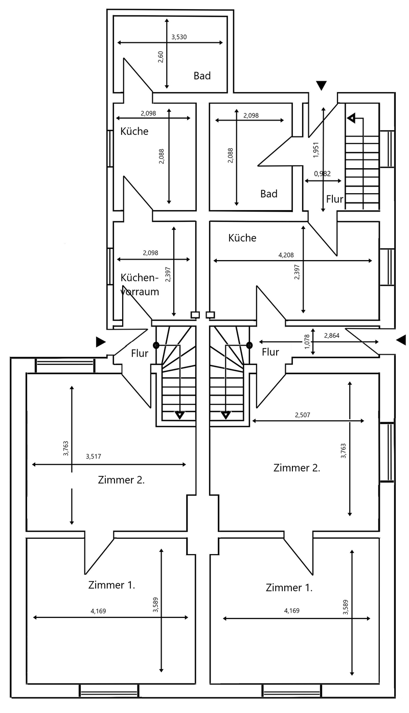
Die teilunterkellerten 4 Zimmer Doppelhauhälften wurden 1927 in massiver Bauweise errichtet. 1947 wurden die Doppelhaushälften im Erdgeschoss mit einem Anbau von ca. 41,21m² mit Flachdach erweitert (Anbau einer Tischlerwerkstatt, Bauschein Nr. 654/47). 1948 wurde der Anbau aufgestockt (Aufstockung der Tischlerwerkstatt, Bauschein Nr. 1492/48).

Die Doppelhaushälfte Heisterkampstraße 23 verfügt über eine Wohnfläche von ca. 68,15m² verteilt auf ca. 50,19m² im EG und ca. 17,96m² im OG. Eine Nutzfläche von ca. 7,29m² steht im Teilkeller (Deckenhöhe von ca. 1,657m) zur Verfügung. Die Beheizung erfolgt über eine Gasheizung. Der vorliegende Energieausweis weist einen Energiebedarfswert von 402,90 kWh/(m²a) aus.

Die Doppelhaushälfte Heisterkampstraße 23a verfügt über eine Wohnfläche von ca. 69,91m² verteilt auf ca. 51,34m² im EG und ca. 18,57m² im OG. Eine Nutzfläche von ca. 12,24m² steht im Teilkeller (Deckenhöhe von ca. 1,657m) zur Verfügung. Die Wärmeversorgung der Doppelhaushälfte erfolgt über eine Gasheizung. Der vorliegende Energieausweis weist einen Energiebedarfswert von 402,90 kWh/(m²a) aus.

Besondere Ausstattungsmerkmale Heisterkampstraße (Haushälfte 1):

  • Gepflegte Einbauküche
  • Gepflegtes Vollbad mit Waschmaschinenanschluss im Erdgeschoss
  • PKW-Stellplatz am Haus 

Besondere Ausstattungsmerkmale Heisterkampstraße (Haushälfte 2):

  • Großzügiger und gefliester Küchenbereich
  • Helles Duschbad mit Waschmaschinenanaschluss im Erdgeschoss
  • Massives Gartenhaus als Abstellfläche
  • PKW-Stellplatz am Haus, zusätzliche Einzelgarage

Weitere Ausstattungshighlights der beiden Häuser präsentieren wir Ihnen gerne in einer persönlichen Besichtigung.

Vermietung:

Die Doppelhaushälfte Heisterkampstraße 23 ist seit dem 01. März 2023 vermietet. Die monatliche Nettokaltmiete beträgt € 400,00. Die verbrauchsabhängigen Kosten rechnen die Mieter direkt mit den Versorgerwerken ab. Der Faktor liegt bei ca. 18 mit einer Rendite von
ca. 5,55 %.

Grundstück:

Die real geteilten und nicht einsehbaren Grundstücke (Flurstück 250/1 und 250/2) verfügen über eine Grundstücksgröße von jeweils 289m².



Für Rückfragen stehen wir Ihnen gerne unter der Rufnummer: 040 – 84055779 zur Verfügung.

westimmobilien ist seit 2011 Ihr zuverlässiger Partner für den Kauf oder Verkauf, die Vermietung oder die Verwaltung Ihrer privaten oder gewerblichen Immobilie im Westen Hamburgs.

© 2024 Westimmobilien e.K.  |  Lornsenstraße 86  |   22869 Schenefeld  |  eMail: info@westimmobilien.de   |   Tel.:  040 - 840 55 779