westimmobilien e.K.
Lornsenstraße 86
22869 Schenefeld

+49  40 840 55 779
info@westimmobilien.de

westimmobilien ist seit 2011 Ihr zuverlässiger Partner für den Kauf oder Verkauf, die Vermietung oder die Verwaltung Ihrer privaten oder gewerblichen Immobilie im Westen Hamburgs.

Die Natur vor der Tür… Gemütliche und individuelle Maisonette Eigentumswohnung mit Blick ins Grüne

Ort/Straße: SCHENEFELD-DORF, Sandstückenweg  
Objekttyp: Eigentumswohnung  
Baujahr: 1991  
Zimmer: 2  
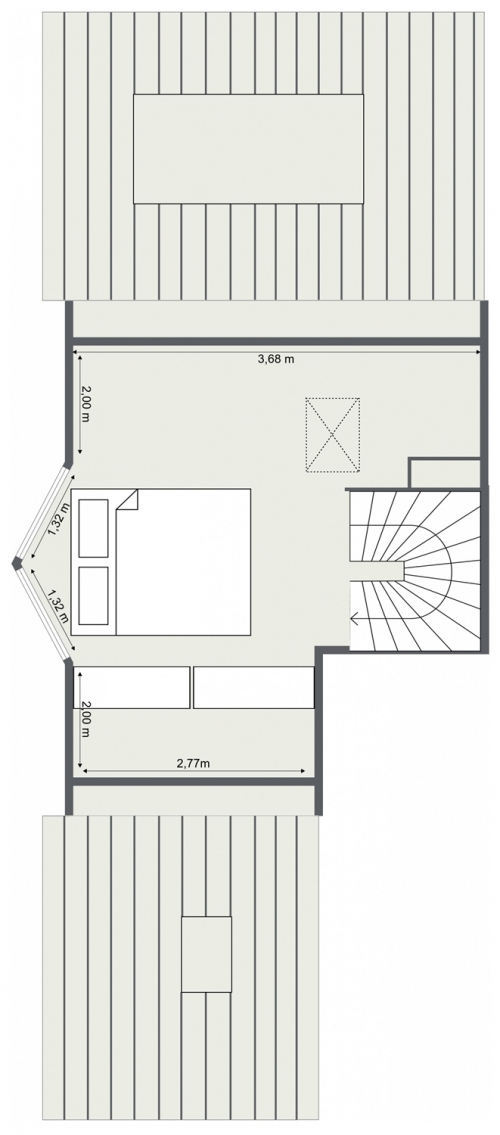
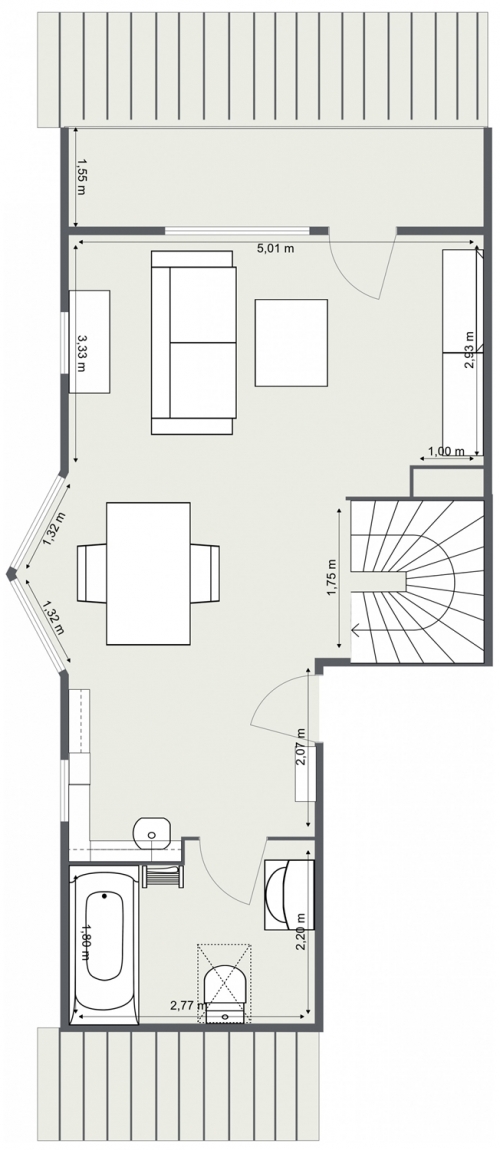
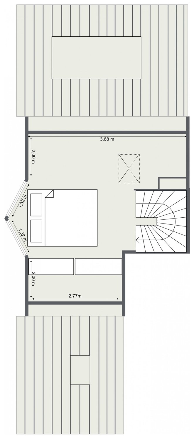
Wohn-/Nutzfläche: ca. 45,25m2  
Lage: 2. Obergeschoss & Dachstudio  
Energiewert: 102,9 kWh/(m²a)  
Wohngeld: ca. 206,76 €  
Kaufpreis: 149.000,00 €  
Courtage: 6 % inkl. MwSt. auf den Kaufpreis  
  Die Courtage für den Verkäufer und  
  Käufer beträgt jeweils 3 % inkl. MwSt.  
Übergabe: nach Vereinbarung  
     
Objekt ID 10212  

 

Die Maisonette Eigentumswohnung befindet sich in der jungen und lebendigen Stadt Schenefeld im Kreis Pinneberg. Hier ist es gleichermaßen möglich die Vorteile einer ländlich geprägten Kleinstadt mit den Angeboten der Großstadt Hamburg auf angenehme Weise zu verknüpfen. Schenefeld ist ein kulturell sehr lebendiger und beliebter Wohnort mit über 19.000 Einwohnern, der trotz der direkten Nachbarschaft zur Großstadt Hamburg seine Eigenständigkeit bewahrt.

Das über die Stadtgrenzen hinaus bekannte „Stadtzentrum Schenefeld“, bietet mit einer Vielzahl an Fachgeschäften über die guten Einkaufsmöglichkeiten hinaus auch eine gastronomische Vielfalt an und lädt zum Bummeln, Einkaufen und Kommunizieren ein. Viele Lebensmittelfachgeschäfte stehen zudem für den täglichen Bedarf in unmittelbarer Umgebung zur Verfügung. Des Weiteren ist die medizinische Versorgung durch verschiedene Ärzte (Allgemeinmediziner, Zahnärzte, Kinderärzte sowie weitere medizinische Fachärzte) im Ärztehaus Schenefeld und in näherer Umgebung gewährleistet.

Ein breites und familiengerechtes Sportangebot steht im Breitensportverein Blau-Weiß 96 Schenefeld, dem 1971 gegründeten Tennisclub Schenefeld mit seinem eigenen Vereinsgelände sowie diversen Reitställen zur Verfügung. Schenefeld bietet Ihnen Kinderbetreuungsangebote von der individuellen Kindertagespflege, über die Betreuung in Kindertagesstätten vom Krippenalter und Elementar- und Familiengruppen, bis hin zum Ganztagshort. Mit den zwei Grundschulen (Gorch-Fock-Schule, Schule Altgemeinde) deckt die Gemeinde Schenefeld den Schulzweig für die heranwachsenden Kinder ab. Das Schulzentrum Achter de Weiden bildet, neben dem Gymnasium Schenefeld, die zum Schuljahr 2010/2011 aus Haupt- und Realschule zusammengeschlossene Gemeinschaftsschule.

Die Stadt Schenefeld bietet der Jugend ein großzügiges und breites Freizeitangebot. Neben den eigenen Sportstätten und Sportplätzen, die überwiegend für den Schul- und Vereinssport genutzt werden, befindet sich hinter dem Sportplatz Achter de Weiden eine große Skater-, Skateboard- und BMX-Anlage zur sportlichen Freizeitgestaltung der Schenefelder Jugend. Auch findet man hier ein für Jedermann zugängliches Basketball-, Fußball- und Beachvolleyballfeld. Komplettiert wird der durchweg positive Gesamteindruck durch die sehr gute Infrastruktur mit diversen Buslinien und einem engmaschigen verbundenem Straßennetz.

Die individuelle 2 Zimmer Maisonette Wohnung befindet sich im 2. Obergeschoss & wohnlich ausgebautem Dachstudio eines 1991 errichteten zweigeschossigen Mehrfamilienhauses. Das Mehrfamilienhaus präsentiert sich in einem sehr gepflegten und optisch ansprechenden Gesamtzustand. Das Mehrfamilienhaus wurde in konventioneller Bauweise „Stein auf Stein“ und mit zweischaligem Mauerwerk von der Schenefelder Baufirma „Terrabaltic“ erbaut. Die Zwischendecken der einzelnen Ebenen bestehen aus Stahlbeton. Eine Vielzahl von isolierverglasten Kunststofffenster (teilweise bodentief) lassen die Wohnung in Tageslicht erstrahlen. Die Eigentümergemeinschaft (Sandstückenweg 14-18) besteht aus 21 Wohneinheiten, verteilt auf 3 Hauseingänge.

Die Wohn-/Nutzfläche von ca. 45,20m² (inkl. 3% Putzabzug) verteilt sich auf ca. 35,61m² Wohnfläche im 2. Obergeschoss und ca. 9,94m² wohnliche ausgebaute Nutzfläche im Dachstudio.

Die Beheizung des Hauses erfolgt über eine Gas-Zentralheizung (Bj´91). Die Warmwasseraufbereitung erfolgt ebenso über die Heizungszentrale. Der vorliegende Energieausweis weist einen Energieverbrauchswert von 102,9 kWh/(m²a) aus.

  • Helle Einbauküche inkl. Backofen, Kühlschrank, Unter- und Oberschränke
  • Gepflegtes Tageslichtbad mit Badewanne
  • Herrlicher und sonniger Balkon mit Blick in den angrenzenden Kiefernwald
  • Kellerraum
  • PKW-Stellplatz
  • Gemeinschaftseinrichtung: Waschküche und Fahrradabstellraum

 

Weitere Ausstattungshighlights präsentieren wir Ihnen gerne in einer persönlichen Besichtigung

Das Wohngeld für die Wohnung beträgt z.Zt.: € 206,76 und beinhaltet u.a. die Wärmeversorgung (Heizung), Müllabfuhr, Hausreinigung, Strom allgemein, Winterdienst, Gartenpflege, Kabel-TV/Antenne, Hausmeister, Wartung Rauchwarnmelder, Dachrinnenreinigung, Gebäudeversicherung, Grundstückshaftpflichtversicherung, Verwaltervergütung. In dem Wohngeld ist die Zuführung in die Instandhaltungsrücklage für die Wohnung bereits enthalten. Diese beläuft sich z.Zt. auf eine Summe von € 21,17 im Monat.

Die Instandhaltungsrücklage weist einen Bestand per 31.12.2024 von € 119.129,22 auf.



Für Rückfragen stehen wir Ihnen gerne unter der Rufnummer: 040 – 84055779 zur Verfügung.

westimmobilien ist seit 2011 Ihr zuverlässiger Partner für den Kauf oder Verkauf, die Vermietung oder die Verwaltung Ihrer privaten oder gewerblichen Immobilie im Westen Hamburgs.

© 2024 Westimmobilien e.K.  |  Lornsenstraße 86  |   22869 Schenefeld  |  eMail: info@westimmobilien.de   |   Tel.:  040 - 840 55 779