westimmobilien e.K.
Lornsenstraße 86
22869 Schenefeld

+49  40 840 55 779
info@westimmobilien.de

westimmobilien ist seit 2011 Ihr zuverlässiger Partner für den Kauf oder Verkauf, die Vermietung oder die Verwaltung Ihrer privaten oder gewerblichen Immobilie im Westen Hamburgs.

Ihr Rückzugsort mit Stil… Stylische „Design“ Maisonette Eigentumswohnung trifft Wohlfühlen

Ort/Straße: SCHENEFELD, Kiebitzweg  
Objekttyp: Eigentumswohnung  
Baujahr: 1992  
Zimmer: 4  
Wohnfläche: ca. 105,26m2  
Lage: 2. Obergeschoss & Dachstudio  
Energiewert: 107,4 kWh/(m²a)  
Wohngeld: ca. 548,00 €  
Kaufpreis: 399.000,00 €  
Courtage: 6 % inkl. MwSt. auf den Kaufpreis  
  Die Courtage für den Verkäufer und  
  Käufer beträgt jeweils 3 % inkl. MwSt.  
Übergabe: nach Vereinbarung  
     
Objekt ID 10211  

 

Die Eigentumswohnung befindet sich in der jungen und lebendigen Stadt Schenefeld im Kreis Pinneberg. Hier ist es gleichermaßen möglich die Vorteile einer ländlich geprägten Kleinstadt mit den Angeboten der Großstadt Hamburg auf angenehme Weise zu verknüpfen. Schenefeld ist ein kulturell sehr lebendiger und beliebter Wohnort mit über 19.000 Einwohnern, der trotz der direkten Nachbarschaft zur Großstadt Hamburg seine Eigenständigkeit bewahrt.

Das über die Stadtgrenzen hinaus bekannte „Stadtzentrum Schenefeld“, bietet mit einer Vielzahl an Fachgeschäften über die guten Einkaufsmöglichkeiten hinaus auch eine gastronomische Vielfalt an und lädt zum Bummeln, Einkaufen und Kommunizieren ein. Viele Lebensmittelfachgeschäfte stehen zudem für den täglichen Bedarf in unmittelbarer Umgebung zur Verfügung. Des Weiteren ist die medizinische Versorgung durch verschiedene Ärzte (Allgemeinmediziner, Zahnärzte, Kinderärzte sowie weitere medizinische Fachärzte) im Ärztehaus Schenefeld und in näherer Umgebung gewährleistet.

Ein breites und familiengerechtes Sportangebot steht im Breitensportverein Blau-Weiß 96 Schenefeld, dem 1971 gegründeten Tennisclub Schenefeld mit seinem eigenen Vereinsgelände sowie diversen Reitställen zur Verfügung. Schenefeld bietet Ihnen Kinderbetreuungsangebote von der individuellen Kindertagespflege, über die Betreuung in Kindertagesstätten vom Krippenalter und Elementar- und Familiengruppen, bis hin zum Ganztagshort. Mit den zwei Grundschulen (Gorch-Fock-Schule, Schule Altgemeinde) deckt die Gemeinde Schenefeld den Schulzweig für die heranwachsenden Kinder ab. Das Schulzentrum Achter de Weiden bildet, neben dem Gymnasium Schenefeld, die zum Schuljahr 2010/2011 aus Haupt- und Realschule zusammengeschlossene Gemeinschaftsschule.

Die Stadt Schenefeld bietet der Jugend ein großzügiges und breites Freizeitangebot. Neben den eigenen Sportstätten und Sportplätzen, die überwiegend für den Schul- und Vereinssport genutzt werden, befindet sich hinter dem Sportplatz Achter de Weiden eine große Skater-, Skateboard- und BMX-Anlage zur sportlichen Freizeitgestaltung der Schenefelder Jugend. Auch findet man hier ein für Jedermann zugängliches Basketball-, Fußball- und Beachvolleyballfeld. Komplettiert wird der durchweg positive Gesamteindruck durch die sehr gute Infrastruktur mit diversen Buslinien und einem engmaschigen verbundenem Straßennetz.

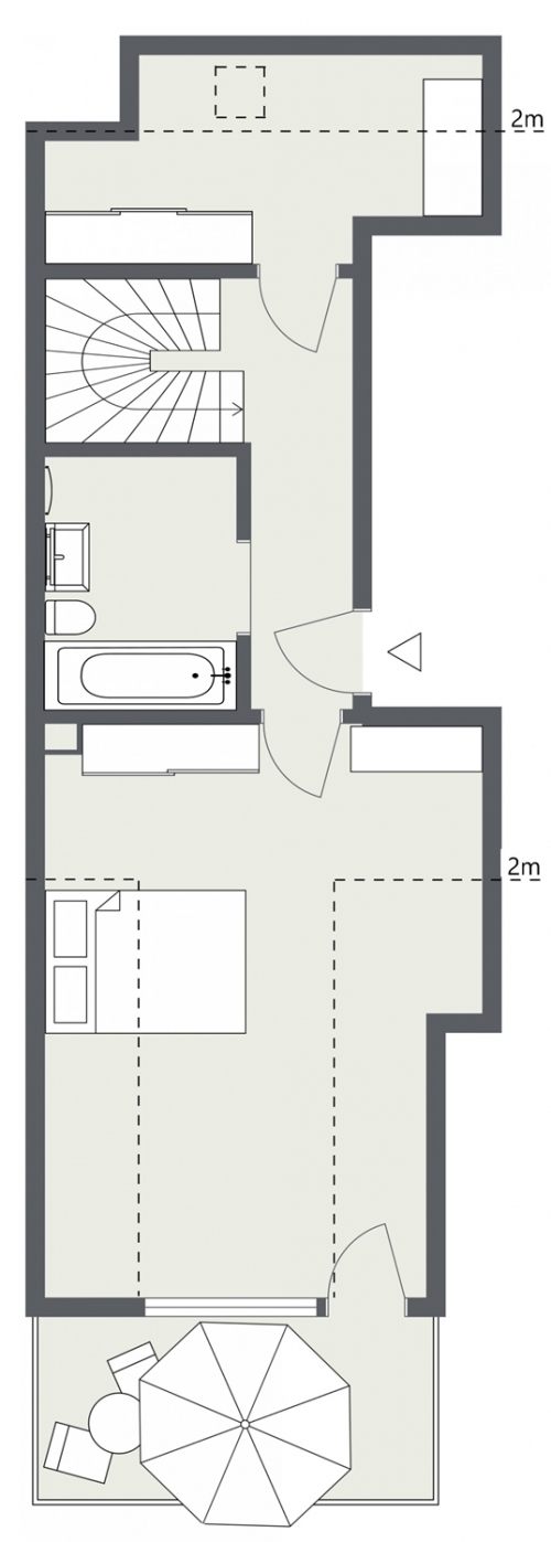
Die moderne 4 Zimmer Maisonette Eigentumswohnung mit einer Wohnfläche von ca. 105,26m² befindet sich im 2. Obergeschoss und Dachstudio eines 1992 errichteten, gepflegten Wohnensembles. Eine Vielzahl von doppelverglasten, teilweise bodentiefen Kunststofffenstern lassen die Wohnräume in Tageslicht erstrahlen. Die Immobilie wurde nach dem Erwerb der Verkäufer umfangreich saniert und modernisiert.

Die Eigentümergemeinschaft (Kiebitzweg 26 a-c) besteht aus 30 Wohneinheiten (Wohnungseigentumsrechte), verteilt auf 3 Hauseingänge und 36 Tiefgaragenstellplätze (Teileigentumsrechte).

Die Beheizung der Wohnanlagen erfolgt über eine Gas-Zentralheizungen (Bj´06) über die auch die Warmwasseraufbereitung reguliert wird. Der vorliegende Energieausweis weist einen Energieverbrauchswert von 107,4 kWh/(m²a) aus.

  • Ansprechendes, fugenloses „Designer“ Vollbad (Firma Ulrich Holz GmbH) mit Badewanne, Handtuchheizung und Waschmaschinenanschluss im Dachstudio
  • Modernes und fugenloses „Designer“ Duschbad (Firma Ulrich Holz GmbH) mit Echtglas-Duschabtrennung, Downlightspots und Badezimmerspiegel mit integrierter Infrarotheizung im Obergeschoss
  • Geschmackvolle Einbauküche mit Backofen, Induktionskochfeld, Geschirrspülmaschine, Kühlschrank, Gefrierschrank, Sitzmöglichkeit/Tresen, Unter- und Oberschränke
  • Design Fußboden in der gesamten Wohnung
  • Weiße Innentüren im Landhausstil
  • Abstellraum in der Wohnung
  • Sonnige Balkone in Süd-/West Ausrichtung
  • Tiefgaragenstellplatz Nr. 31, ein zusätzlicher Tiefgaragenstellplatz Nr. 34 kann für
    € 20.000,00 erworben werden
  • Gemeinschaftseinrichtungen: Waschküche und Trockenraum

 

Weitere Ausstattungshighlights präsentieren wir Ihnen gerne in einer persönlichen Besichtigung

Das Wohngeld für die Wohnung beträgt z.Zt. monatlich: ca. € 548,00 und beinhaltet u.a. die Heizungskosten, Wasserkosten, Hausmeister, Winterdienst, Gartenpflege, Hausreinigung, Müllabfuhr, Betriebskosten Tiefgarage, Gebäudeversicherung, Grundstückshaftpflichtversicherung, Wartung Rauchwarnmelder und Verwaltervergütung. In dem Wohngeld ist die Zuführung in die Instandhaltungsrücklage für die Wohnungen mit einer monatlichen Summe von € 154,17 bereits enthalten. Die umlagefähigen Betriebskosten belaufen sich z.Zt. (laut Wirtschaftsplan) auf ca. € 315,02 pro Monat.



Für Rückfragen stehen wir Ihnen gerne unter der Rufnummer: 040 – 84055779 zur Verfügung.

westimmobilien ist seit 2011 Ihr zuverlässiger Partner für den Kauf oder Verkauf, die Vermietung oder die Verwaltung Ihrer privaten oder gewerblichen Immobilie im Westen Hamburgs.

© 2024 Westimmobilien e.K.  |  Lornsenstraße 86  |   22869 Schenefeld  |  eMail: info@westimmobilien.de   |   Tel.:  040 - 840 55 779